



由著名开发商Lanterra Developments开发的No.31 Condos将坐落于市中心酿酒区核心地段,距离Google科技城200米,步行仅需3分钟。






【项目名称】NO. 31 Condominium
【地理位置】Parliament St. & Lakeshore Blvd.
【楼盘地址】31 Parliament Street, Toronto
【建筑设计】Arquitectonica
【开发商】Lanterra Developments
【楼层】37层
【单位】247户
【预计入住】TBD


··············我是广告··············

··············我是广告··············
◆坐落于老酿酒区的核心地段,周边生活便利,饭馆,酒吧,商店和各种娱乐设施近在咫尺
◆近Gardiner和DVP高速,乘车直达Union联合车站
◆谷歌科技城的建成,将使该地区成为新的投资升值热点
◆近Parliament Square公园,博物馆,艺术中心等



Lanterra Developments 是加拿大颇具实力的高级公寓开发公司,致力于开发多伦多核心位置和极具升值潜力的关键位置的项目,Lanterra投资的项目占据整个多伦多公寓市场份额的前三甲,是最近十年发展最快的地产开发集团。所开发的楼盘品质卓越,风格独特,在业界享誉盛名,其中包括大家熟知的11 Wellesley On The Park,The Britt Condo,Murano,Burano, Ice Condos,3018 Yonge at Lawrence Park,Artists' Alley,Notting Hill 等众多杰出楼盘,实力可见一斑,选择Lanterra,选择品质与信心。
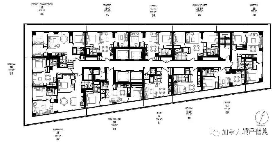
No.31 Condo于10月30日开盘。更多户型参考请联系枫叶地产 905-604-6855









··············我是广告··············








…………我是广告…………





















