加中资讯网2020年12月4日讯,
Bay Breeze独栋别墅区位于Tampa市南侧的阿波罗海滩附近,住户自驾船进入Tampa Bay仅需几分钟而已。紧邻高速I-75和41U.S Highway, 为住户的出行带来了最大便捷。
项目名称:Bay Breeze海风湾
所在城市:Tampa 坦帕
房屋类型:自住独栋别墅
房屋性质:住宅(永久产权)
项目户型:卧室 3-4间
浴室 2-3间
房屋价格:起价 $259,990
面积:1,806-2,362平方英尺
为什么选择坦帕?










…………我是广告…………

…………我是广告…………
常青国际地产公司透露:目前Bay Breeze共有54套独栋别墅, 期房可售数量在每月4套(限量销售)。
项目亮点

社区实景









坦帕湾的著名球队
坦帕湾知名大学
•坦帕大学 (私立)
•南佛罗里达大学(U.S. NEWS Ranking 103)
•Hillsborough Community College

社区规划


开发商介绍 - ParkSquareHomes
Park Square Homes是佛罗里达州中部地区首屈一指的住宅和度假建筑商之一。近40年来,PSH赋予社区多样化和高品质。注重细节,个性化设计,及出色的客户服务,始终为买家创造最大价值。





每一次都是一见钟情
臻品来自于我们对细节的追求
家庭内外的配套来自于最好的供应商
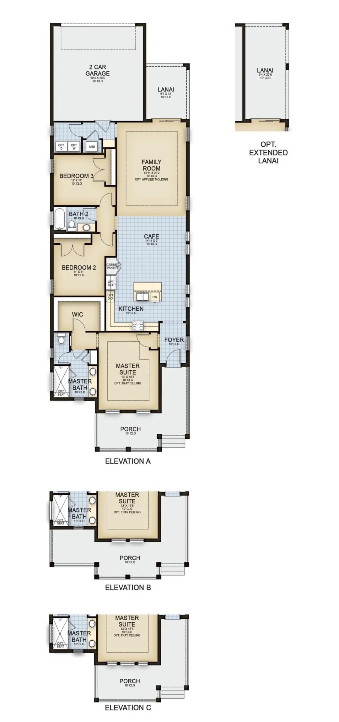
户型介绍
房型1:Sandpiper
房间:3
卫浴:2
车库:2
楼层:1
大小:1806尺(167平方米)




…………我是广告………

…………我是广告……
房型2:Ibis
房间:3 + 1 办公室
卫浴:2
车库:2
楼层:1
大小:1969平方英尺(183平方米)



房型3:Egret
房间:3
卫浴:2.5
车库:2
楼层:2
大小:2121平方英尺(197平方米)





房型4:Osprey
房间:4
卫浴:3
车库:2
楼层:2
大小:2362平方英尺(219平方米)





实景拍摄













来源: 常青国际地产
…………我是广告…………








···········End···········






