加中资讯网2020年5月17日讯,


The Saint Condos 奢华公寓,一流设施,市中心黄金地段。位于Church Street,它的高调和奢华注定要成为多伦多标志性的建筑。
楼高47层,融合了时尚设计和精致的居住体验为一体。
Saint距离地铁站仅几步之遥,金融区就在脚下,而且靠近瑞尔森大学。
该社区还具有圣劳伦斯市场和Eaton Centre,他们将为住户们提供卓越购物体验,这里才是真正的城市中心。
·········我是广告·········

·········我是广告·········
更多资讯、更优价格、更好楼盘!
请联系您身边的领峯地产经纪(国、粤和英语皆可)!
我们十分愿意为你解答所有问题!
【楼盘名称】The Saint
【开发商】Minto
【项目地址】 89 Church St, Toronto
【主要路口】Church/Adelaide
【单位数】约416个
【楼层】47层
【交楼时间】预计2024年
【价格】50余万起

领峯地产 | First Class Realty
更多资讯、更优价格、更好楼盘!请联系您身边的领峯地产经纪(国、粤和英语皆可)!我们十分愿意为你解答所有问题!


位于DT的中心地理位置没得说,可以说是王中之王。
全多伦多人流量最大的购物商场Eaton Centre步行就能到达。
地铁站更是咫尺之距。附近的学校也是不胜枚举,只要学校在dt,就离The Saint近!吃喝玩乐为一体,休闲工作在附近,多伦多的确是一个繁华热闹的城市,只要住在这里你就住在繁华的中心。
不仅仅是黄金地理位置,窗外的风景也别具一格,多伦多的繁华都能尽收眼底。

Minto集团是一家加拿大房地产公司,总部位于安大略省渥太华。
在渥太华,多伦多,卡尔加里和佛罗里达州都有不少项目。
还管理安大略省和艾伯塔省的多住宅和商业物业。
建造了85,000套新房屋,管理着29亿的资产,包括13,000个多住宅单位和270万平方英尺的商业空间。
该公司是渥太华最大的住宅业主之一。
Minto还拥有一家公开上市的子公司,该子公司持有其一些多住宅单位,称为Minto Apartment Real Estate Investment Trust。
·········我是广告·········

·········我是广告·········
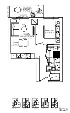
查看部分房型图
👉向右滑动查看下一站图片









更有优惠详情请联系您身边领峯地产的经纪!我们诚心问您服务!保证您买到最优惠的价格!更多的房源!
…………我是广告…………





··············我是广告··············






